+46 (0)40 93 57 55
  • Gratis materialprover
  • Måttanpassning efter behov
  • Egenutvecklade komponenter

Så här fungerar skenan

Välj mellan att samla gardinen till vänster eller höger (oftast endast för en gardinlängd), alternativt öppna från mitten och samla på varsin sida (för två gardinlängder). Gör du ingen ändring tillverkas skenan med mittöppning, dvs för två gardinlängder. Detta går inte att ändra i efterhand, så var uppmärksam på vad du väljer.

Ändstoppet sitter så att du alltid får perfekta veck ända ut i skenans ändar. Beroende på hur du fäster dina krokar i gardinen kan du antingen dölja eller inte dölja skenan med tyget. 

Du kan enkelt ta av och lägga till glid på skenan, även efter att du har monterat den, tack vare enkla öppningar i konstruktionen.

Montera gardinen i taket eller på väggen. Takbeslag ingår, väggvinklar går att köpa till. Beslagen döljs av skenan och är mycket diskreta. 

För att underlätta för leveransen delas alla skenor från 200 cm bredd i två delar. Det ingår skarvstycken som enkelt skruvas fast för en stabil skarvning som inte syns på skenans framsida.

Detta ingår:

- En gardinskena i pulverlackad aluminium med batterimotor alt. manuell betjäning
- Pleat-utförande
- Takbeslag, antal efter skenans bredd
- Ändstopp och master-glid (en av varje vid sidoöppning, två av varje vid mittöppning)
- 12 standardglid per löpmeter skena
- Måttanpassning

Skenan är gjord i pulverlackad aluminium. Komponenterna är tillverkade i Turkiet/Bulgarien. Skenan måttanpassas och packas i Sverige.

Ritning glid

pleat-spec

Montering i tak (takbeslag ingår)

takbeslag

 

Väggvinkel till enkel gardin, längd 85-100 mm (går att köpa till)

skiss-vaggbeslag-gardinskena-se

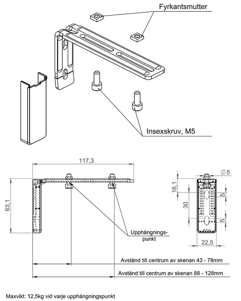
Väggvinkel till dubbel gardin, längd 120 mm (går att köpa till)

pleat-vaggvinkel-dubbel-ritning-sv